FAIMES

Nouvelle construction 4 façades

Dans la région naturelle de Hesbaye, découvrez ce nouveau projet de construction, à Faimes.

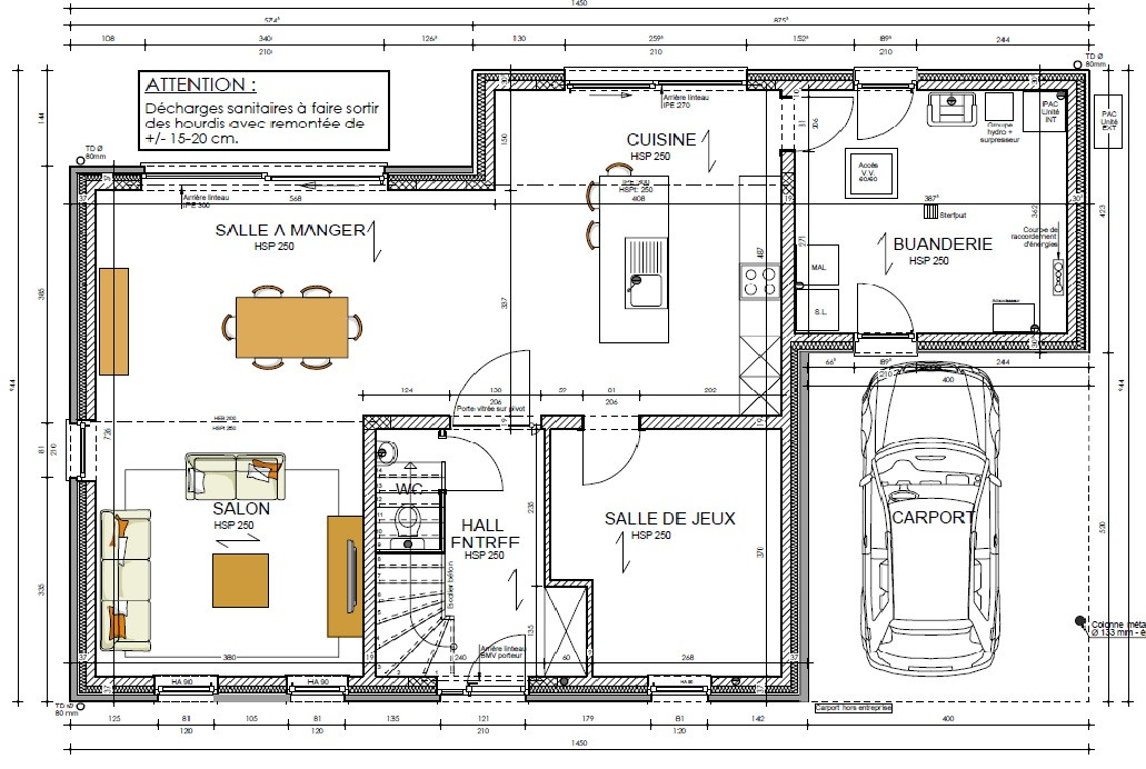
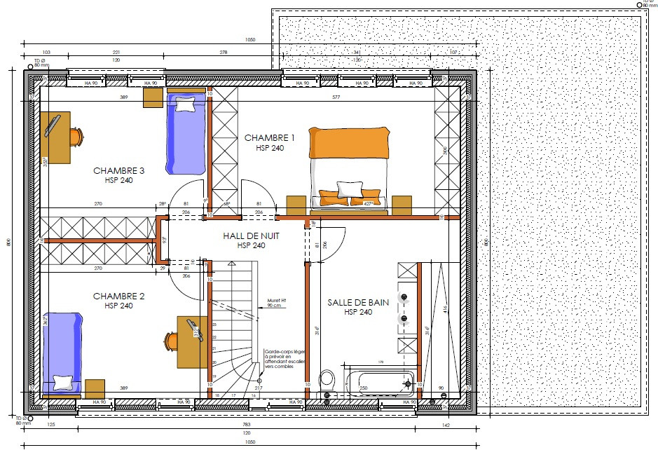
Cette maison sera composée de beaux grands espaces au rez-de-chaussée ainsi que 3 chambres à l'étage.

Suivez l'avancement sur notre site internet ou sur notre page Facebook, en cliquant ici !