BOIS DE VILLERS

Maison 4 façades à Bois de Villers, dans la commune de Profondville

Dans le village de Bois de Villers, quartier semi-résidentiel, à la campagne, retrouvez ce nouveau projet clôturé.

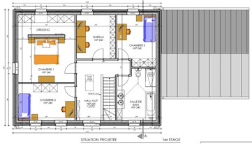
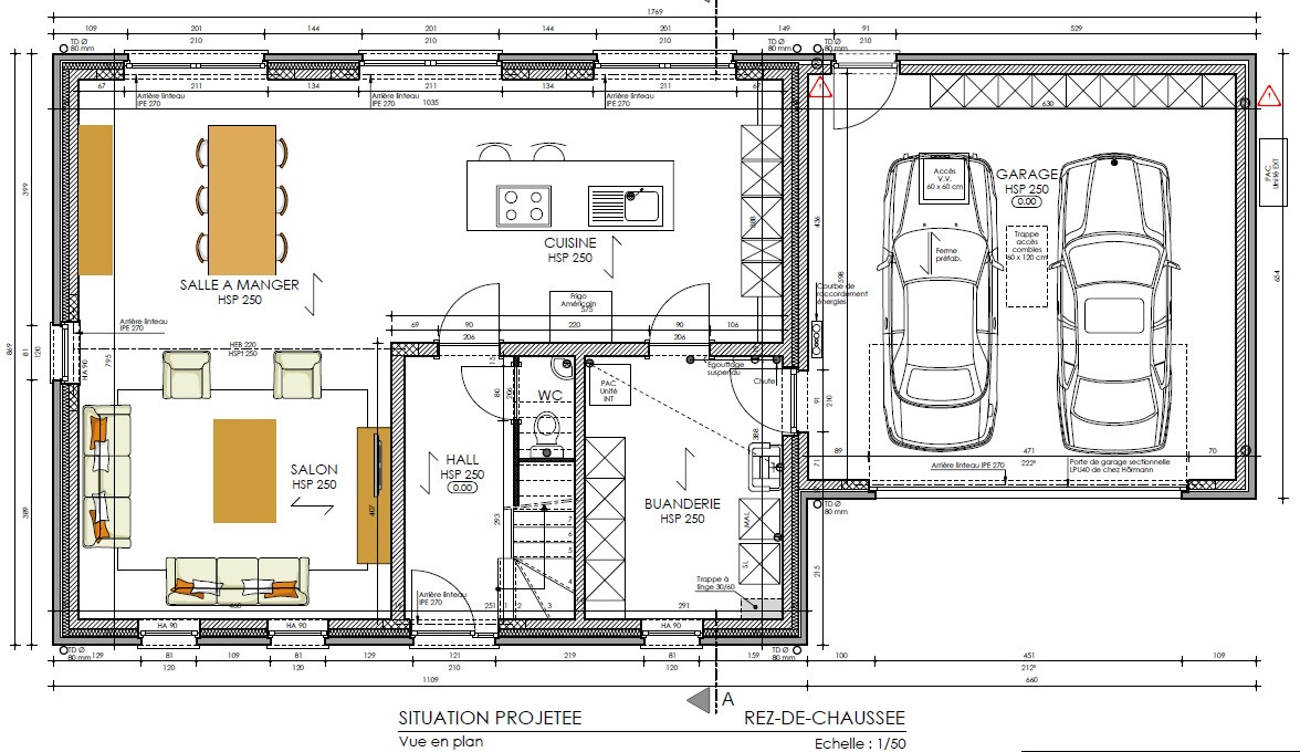
Ses propriétaires juissent d'un grand espace au rez-de-chaussée pour se retrouver et de 3 chambres à l'étage, dont la chambre parentale ainsi qu'un bureau.

Ils pourront également profiter des extérieurs avec un beau jardin et une luminosité entrant par les baies vitrées donnant sur celui-ci.