BRAIVES

Nouvelle construction à BRAIVES (LOT 3)

Découvrez ce charmant projet de construction sur le LOT 3, de la Rue de Vélupont, à BRAIVES.

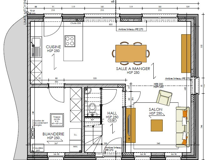
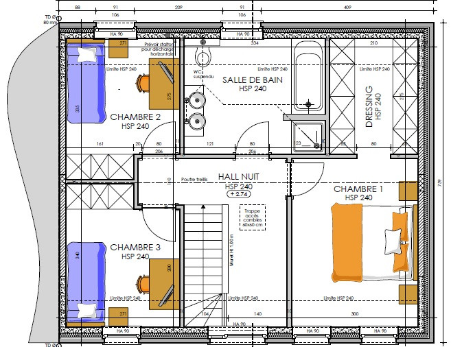
A seulement 6 min du centre du village et de ses commodités, ainsi qu'à 13 min de la E42 ce projet comprend 3 chambres, dont une parentale avec dressing et la salle de bain à l'étage.

Terrain de 990 m² pour une construction 3 façades.

Plus d'informations? Contactez-nous sans plus tardez !

> IMMOWEB