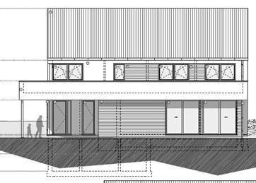
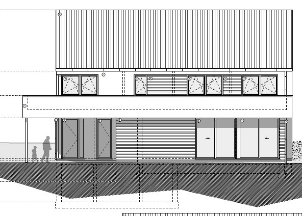
NANDRIN

Villa dans le Condroz de 6 chambres et 2 salles de bain à l'étage, projet en construction !

Ouverture d'un nouveau chantier sur la Commune de Nandrin.

Dans un écrin de verdure, découvrez cette magnifique villa.

Calme et sérénité sont les maitres mots de ce projet.

Cette villa comprendra de grands espaces ouverts au rez-de-chaussée et 6 chambres et 2 salles de bain à l'étage.