Maison LOT 3 à LINCENT

Maison 4 façades à vendre à LINCENT

Dans les campagnes hannutoises, proches du centre du village de Lincent, venez découvrir ce magnifique terrain de 602 m². Liant le calme et le côté pratique, vous serez à 1 min de l’entrée de l’autoroute E40.

Découvrez ce magnifique projet de maison 4 façades, mitoyenne par le carport.

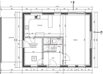
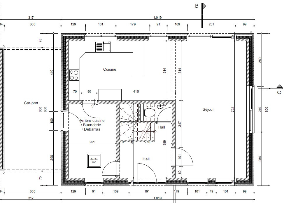
Au rez-de -chaussée, la maison se compose d'un hall, d'un grand séjour, d'une salle à manger donnant sur la cuisine, en plus, une arrière cuisine pouvant servir de buanderie.

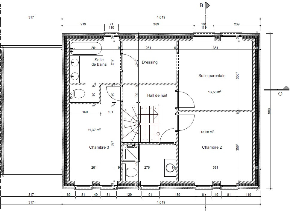
A l'étage, 3 chambres dont une parentale avec dressing et salle de bain. De plus, une salle de douche est à disposition pour les deux autres chambres.

Au total : 7 terrains avec constructions disponibles allant de 602m² à 1.111m².

Intéressé(e)s : contactez-nous : info@gplusconcepts.be - www.gplusconcepts.be