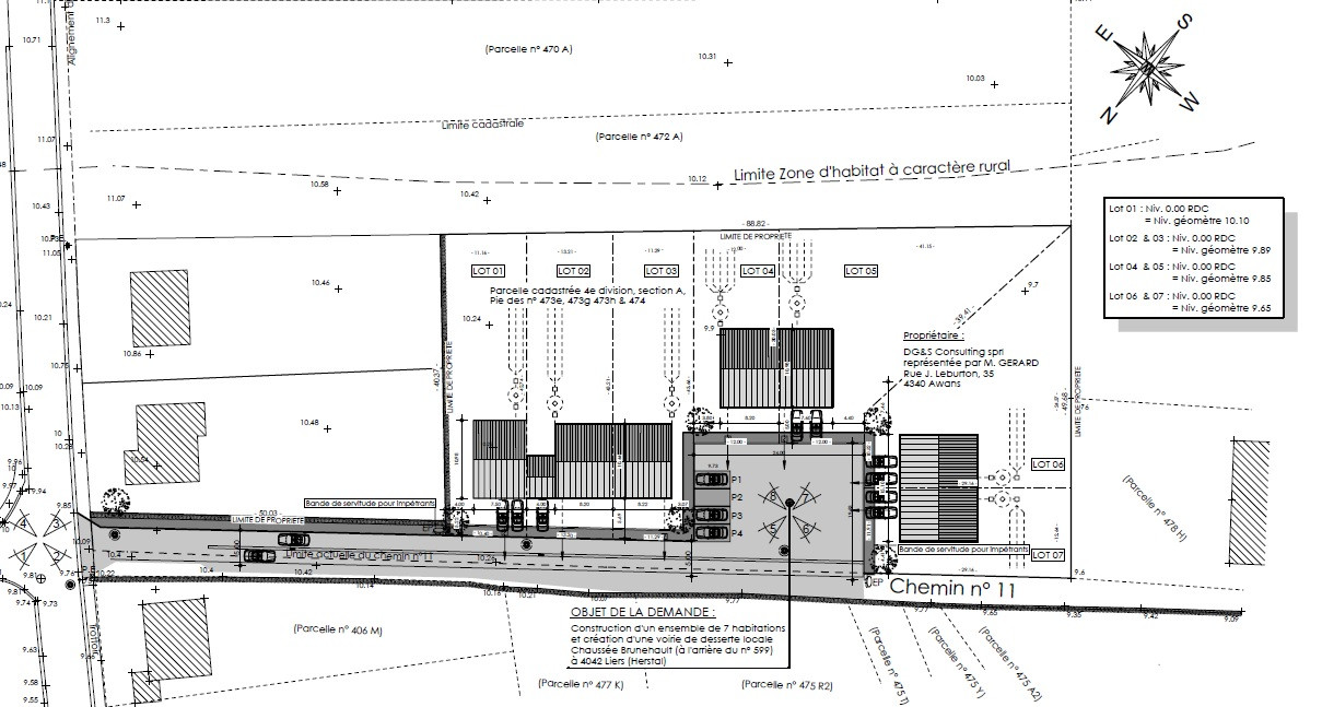
7 maisons à vendre à LIERS

À vendre - nouvelles constructions dans un clos résidentiel à LIERS

Découvrez ce clos en limite de zone agricole, tout en étant à proximité des toutes les commodités.
Vous pourrez rejoindre l’E313 en 2 minutes et la E25 en 5 minutes à peine.
Ecoles, commerces et arrêts de bus se trouvent à proximité de ces futures constructions.
Découvrez sans tarder ce clos où vos enfants pourront jouer en toute sécurité, loin du trafic routier.