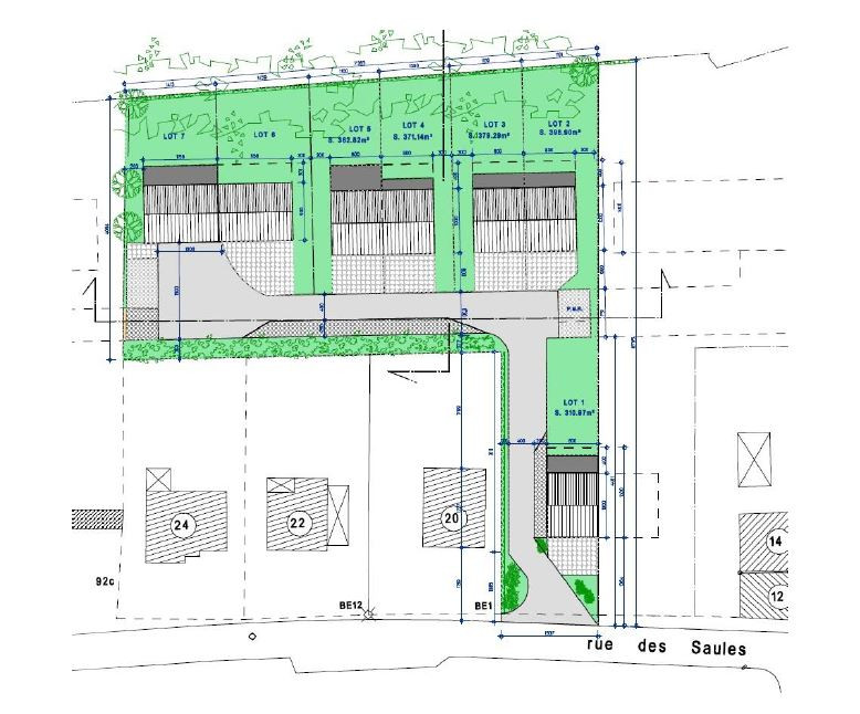
7 terrains à vendre à AWANS

À vendre - 7 terrains pour projets situés à Awans

A l’entrée de la charmante commune de AWANS, découvrez ce nouveau clos.
Situé à proximité des plus grandes axes autoroutiers desservant tout le pays mais également en bordure de campagne, ce clos vous plaira à coup sûr.
Il s’agit des derniers terrains disponibles sur la Commune.
De plus, vos enfants pourront jouer en toute tranquillité et sécurité à l’intérieur de ce clos