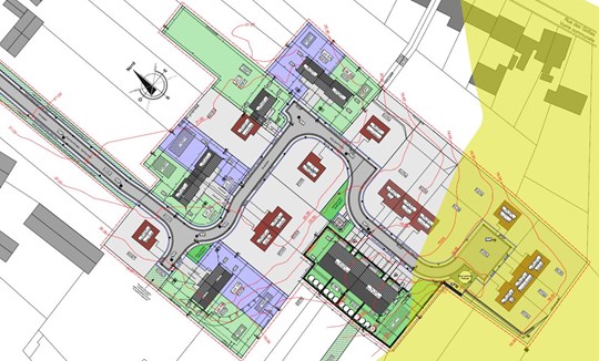
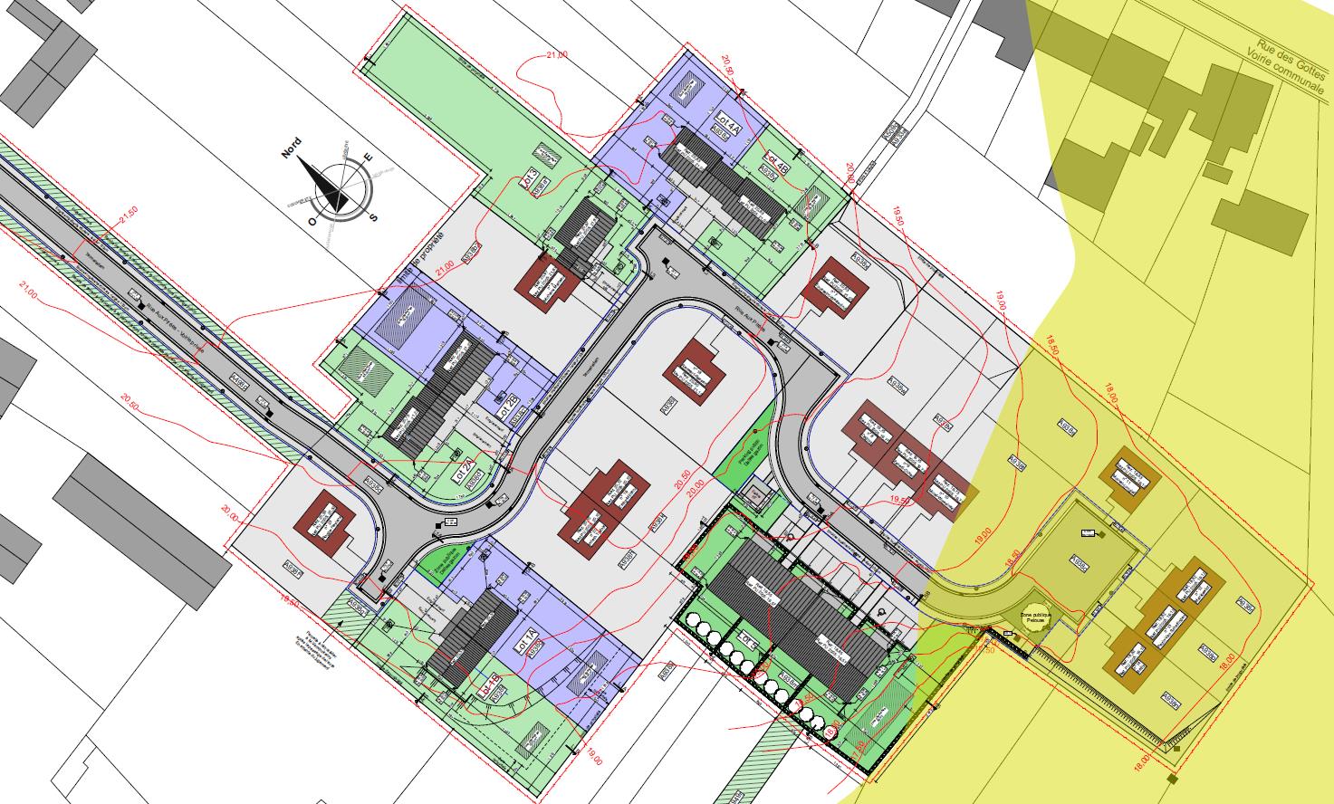
7 TERRAINS A VENDRE à LINCENT

7 Terrains à vendre sur la commune de LINCENT

Dans les campagnes hannutoises, proches du centre du village de Lincent, venez découvrir ce magnifique terrain de 602 m².

Liant le calme et le côté pratique, vous serez à 1 min de l’entrée de l’autoroute E40.

Distribution des lots disponibles :

LOT 2 : 744,17m² = 73.673,00 hf

LOT 3 : 739,65m² = 73.225,00 hf

LOT 16 : 595,84m² = 67.667,00 hf

LOT 17 : 612,90m² = 69.032,00 hf

LOT 18 : 1 111,01m² = 88.152,00 hf

LOT 20 : 649,99m² = 70.699,00 hf

LOT 21 : 602,62m² =  68.210,00 hf