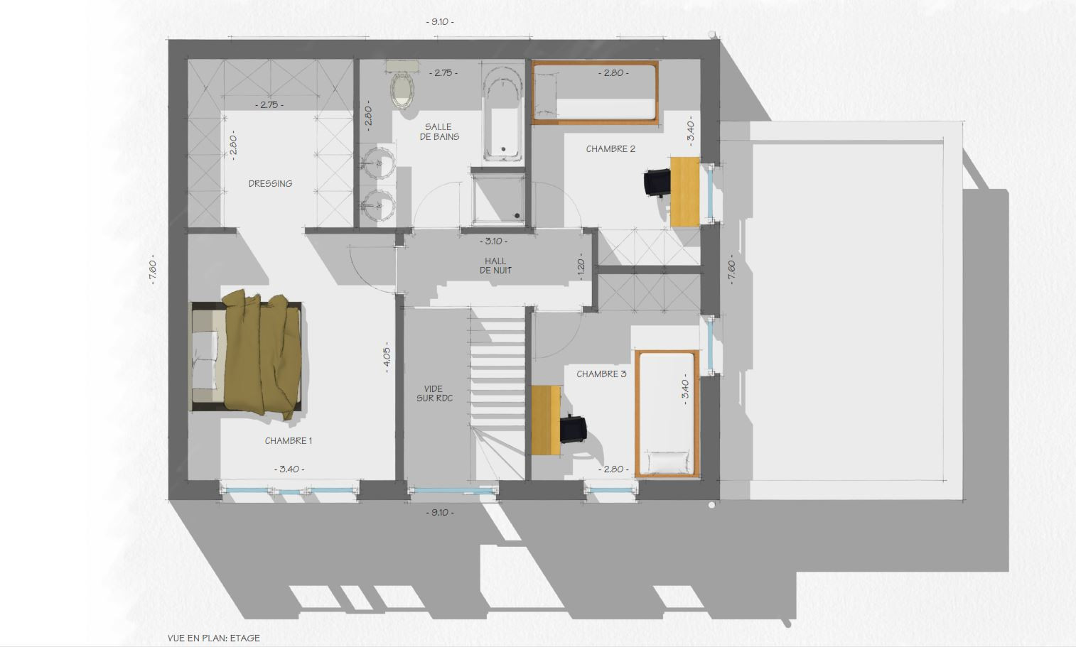
FAMILY

Fonctionnelle et esthétique.

Family, pour ne pas avoir à choisir entre l’esthétique et le pratique, elle contredit le lieu commun qui veut que famille rime avec compromis.

Ses proportions, sa composition et sa disposition, tout a été étudié et conçu pour que toute la famille y trouve sa place.

Family, c’est plus qu’un ensemble, c’ est un tout.

Curieux d'en découvrir encore plus? Cliquez sur CE LIEN et découvrez la vidéo en 360° !